Ein Team von Architekten, Ingenieuren, Innenarchitekten und Designern - unser Büro in Gütersloh und Bielefeld steht Ihnen offen.
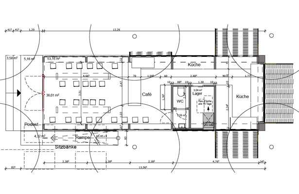
mobiler Gastro-Pavillon in Gütersloh, Berliner Platz
frei