Ein Team von Architekten, Ingenieuren, Innenarchitekten und Designern - unser Büro in Gütersloh und Bielefeld steht Ihnen offen.
AXEL ZUMBANSEN
GEWERBE projekt 3.2
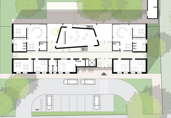
Entwurf Kita Pelikanweg
Beschreibung des Projekts
Entwurf Kita Pelikanweg
Kunde
Stadt Gütersloh