Ein Team von Architekten, Ingenieuren, Innenarchitekten und Designern - unser Büro in Gütersloh und Bielefeld steht Ihnen offen.
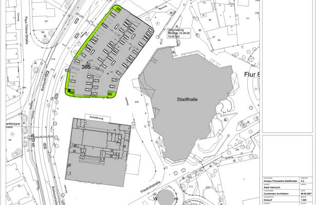
Entwurf Parkhaus am Theater Gütersloh
Stadt Gütersloh