Ein Team von Architekten, Ingenieuren, Innenarchitekten und Designern - unser Büro in Gütersloh und Bielefeld steht Ihnen offen.
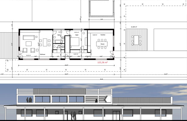
Projektentwurf fügt sich in der Weite der Landschaft ein.
Großfamilie